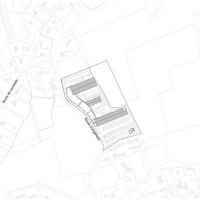
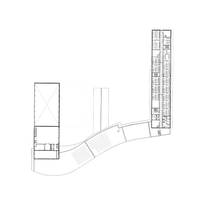
Programme : Construction neuve d’un collège, d’un complexe sportif omnisports et d’un pôle culturel mutualisés.
Ville : Montussan 33
Maître d'ouvrage : Département de la Gironde
Maître d'oeuvre : Bouygues Bâtiment Centre Sud-Ouest | Phase Concours - TAA Toulouse : Cheffe de projet Associée : Marinell Van Wyk | Chef de projet : William Florenza | Chef de projet adjoint : Maxime Agred - Phase projet - TAA Bordeaux : Cheffe de projet Associée : Marinell Van Wyk | Cheffe de projet Junior : Florine Andrault | Cheffe de projet Adjointe : Cansu Valancogne | Architecte Associé : Eric Wirth
Autre membres du Groupement : A+R PAYSAGES, GROUPE CETAB, HTM, Cuisinorme, LASA et SPIE Facilities
Surface : 9 409 m²
Budget : 24.8M€
Dates : Lauréat du concours : Fin 2022 | Début du chantier : Avril 2024 | Livraison estimée : Eté 2025
Certification environnementale : Label BiodiverCity
Perspectives du concours : Artefactory Lab















