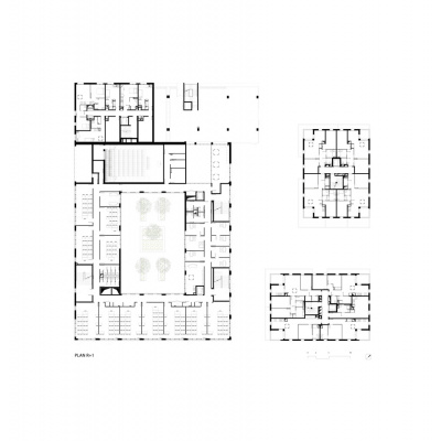
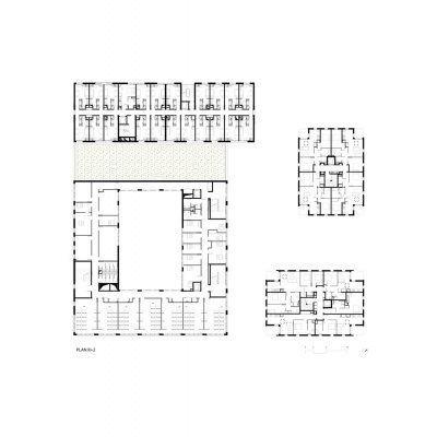
Programme : Construction neuve d'une école d'enseignements supérieurs - Ecole Vidal - et d'une résidence étudiantes de 202 logements - Résidence Artemisia Toulouse. Le Campus se situe à proximité immédiate du "Forum des Arènes", projet de logements collectifs également réalisé par TAA. Ces deux ensembles forment l'îlot 4 du nouveau quartier des Arènes.
Ville : Toulouse 31
Maître d'ouvrage : ENKI | Nexity
Maître d'oeuvre : TAA Toulouse | Chef de projet Associé : Nicolas Wojcik | Conducteur de travaux : Hervé Pendao
Surfaces : Ecole Vidal : 3417 m² | Résidence étudiante : 5346 m²
Budgets : Ecole Vidal : 4,3 M€ | Résidence étudiante : 5,9 M€
Date : Novembre 2020
Photographie : Roland Halbe
Présentation détaillée : Fiche projet complète



























