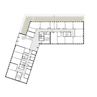
Programme : Construction d’un campus universitaire abritant 4 écoles supérieures : ESARC Évolution, ESG Toulouse (écoles de commerce), Digital Campus (école des métiers du web) et LISAA (école de formation aux arts graphiques numériques)
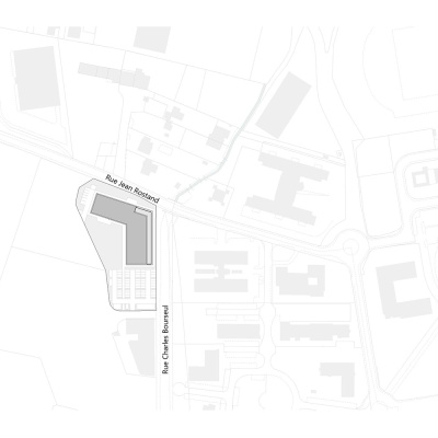
Ville : Labège 31
Maître d'ouvrage : Vinci Immobilier | Midi2i
Maître d'oeuvre : TAA Toulouse | Cheffes de projet : Julie Pirès, Aurélie Guinel
Surface : 4 477 m²
Budget : 4,9 M€
Date : Septembre 2018
Prix : Lauréat du Palmarès Technal 2019 | Lauréat Facades2Build Awards 2019 | Nominé aux ADC Awards 2020 (catégories enseignement)
Photographie : Roland Halbe
Présentation détaillée : Fiche projet complète





















