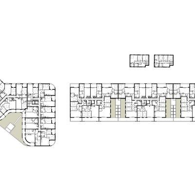
Programme : Construction neuve de 2 bâtiments comprenant 170 logements dont 56 séniors, accompagnés de commerces & services publics
Ville : Toulouse 31
Maître d'ouvrage : Green City Immobilier
Maître d'oeuvre : TAA Toulouse | Cheffe de projet Associée : Aurélie Guinel | Assistant cheffe de projet: Victor Le Forestier
Surface : 9 949 m², dont 3 482 m² dédiés à l'habitat senior
Budget : 20,3 M€
Date : Février 2023
Prix : Lauréat du Prix du Public aux Pyramides d'argent de la FPI 2023
Photographe : Roland Halbe
Présentation détaillée : Fiche projet complète












