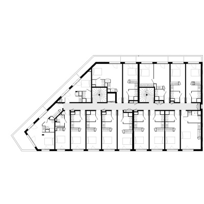
Programme : Résidence hôtelière à vocation sociale
Ville : Toulouse 31
Maître d'ouvrage : Serge Mas Promotion
Maître d'oeuvre : TAA Toulouse | Chef de projet Associé : Nicolas WOJCIK | Cheffe de projet : Cécile ESPARBES
Surface : 3 296 m²
Budget : / M€
Date de livraison estimée : /
Photographie : TAA Toulouse
Perspective : L'Atelier des Chimères
Présentation détaillée : Fiche projet complète









