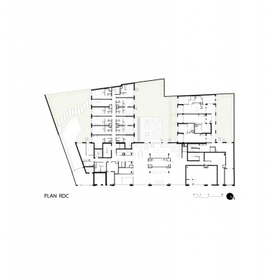
Programme : Construction neuve d'une opération de logements comprenant une résidence hôtelière Odalys de 181 chambres, ainsi que 16 logements collectifs
Ville : Toulouse 31
Maître d'ouvrage : Kaufman & Broad
Maître d'oeuvre : TAA Toulouse | Cheffe de projet : Laurie Corrocher | Conducteurs de travaux : Jean-Louis Papegaey, Claude Lemaire
Surface : 7 015 m²
Budget : 8,7 M€
Date : Novembre 2021
Photographie : Roland Halbe
Présentation détaillée : Fiche projet complète




















