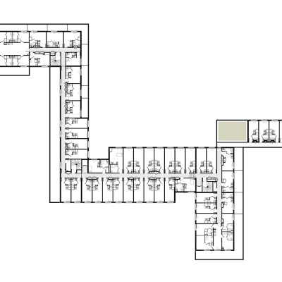
Programme : Construction neuve d’une résidence étudiante de 199 logements
Ville : Toulouse 31
Maître d'ouvrage : GreenCity Immobilier et SOCOTRAP Immobilier
Maître d'oeuvre : TAA Toulouse | Cheffe de projet : Cécile Esparbès | Assistant chef de projet : Valentin Kobes
Surface : 5 550 m²
Budget : 9.04 M€
Date de livraison : Juillet 2024
Photographe : Philippe Rol
Présentation détaillée : Fiche projet complète
















