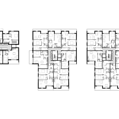
Programme : Construction neuve de 51 logements collectifs
Ville : Villenave d'Ornon 33
Maître d'ouvrage : Sporting Promotion
Maître d'oeuvre : TAA Bordeaux | Chef de projet Junior : Michaël Hauss
Surface : 3 361 m²
Budget : 4,8 M€
Date : Avril 2024
Perspective : L'Atelier des Chimères
Présentation détaillée : Fiche projet complète











