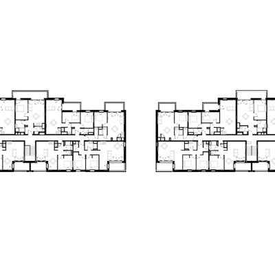
Programme : Construction neuve de deux bâtiments à destination d'habitat collectif, composés de T2, T3, T4 pour un total de 50 logements.
Ville : Le Taillan Médoc 33
Maître d'ouvrage : Idéal Groupe
Maître d'oeuvre : TAA Bordeaux | Cheffe de projet Associée : Marinell Van Wyk | Cheffe de projet Adjointe : Cansu Valancogne | Assistante Cheffe de projet : Marie Egalon
Surfaces : 3 018 m2
Budget : 4.3 M€
Date de livraison estimée : Mars 2026
Labels : NFHQE | RE2020 | Seuil 2025 pour le Bâtiment A
Perspectives : L'Atelier des Chimères
Photographe : TAA













