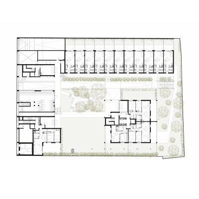
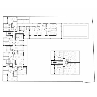
Programme : Réalisation d'un projet de 79 logements collectifs allant du T2 au T5 et d'un parking en sous-sol de 79 places de stationnement.
Ville : Toulouse 31
Maître d'ouvrage : Green City Immobilier
Maître d'oeuvre : TAA Toulouse | Chef de projet Associé : Nicolas Wojcik | Assistante Chef de projet : Clara Rey
Surfaces : 4 753 m2
Labels : NFHQE | Effinature
Perspectives : L'Atelier des Chimères
Photographe : TAA








