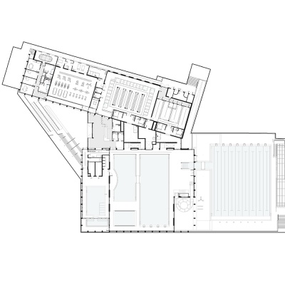
Programme : Réaménagement et extension d'un complexe sportif aquatique
Ville : Carcassonne 11
Maître d'ouvrage : Ville de Carcassonne | Exploitant : Espacéo - SPIE Batignolles
Maître d'oeuvre : Architecte : TAA Montpellier | Chef de projet Associé : Anthony Morinière | Assistante chef de projet : Elodie Burgos | Constructeur : SPIE Batignolles Sud-Ouest | BET Structure : BETEM | BET Fluides : Patrick TUAL
Surface : 2 222 m²
Budget : 10,8 M€
Date : Juin 2021
Prix : Nominé aux BOTY 2022 par Archdaily (catégorie Equipements Sportifs) | Finaliste des Architizer Awards 2022 (catégorie Gym & Recreation Centers)
Missions BIM : Conception
Photographie : Roland Halbe
Film 3D : L'Atelier des Chimères
Présentation détaillée : Fiche projet complète































