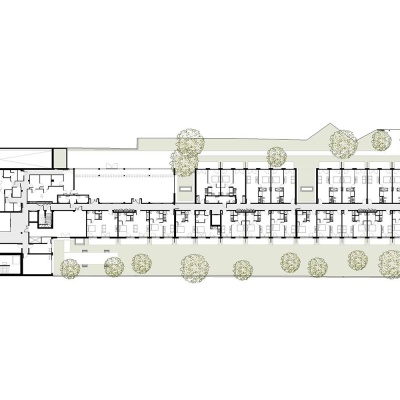
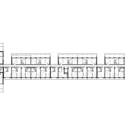
Programme : Construction neuve d’une résidence de services de 89 logements à destination des seniors
Ville : Toulouse 31
Maître d'ouvrage : Uniti Habitat
Maître d'oeuvre : TAA Toulouse | Cheffe de projet Associée : Marinell Van Wick | Assistante Cheffe de projet : Lauriane Dubois | Conducteur de travaux : Anthony Tainon | Assistante conducteur de travaux : Djaouida Baleh
Surface : 3 987 m²
Budget : 6.3 M€
Date de livraison estimée : Septembre 2024
Photographie : Philippe Rol
Perspective : L'Atelier des Chimères












