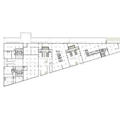
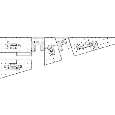
Programme : Le projet prévoit la construction d’un édifice constitué d’un “socle actif” et de quatre émergences dites “plots”. Il accueillera 3 niveaux de parking en sous-sol, des commerces et services en rez-de-chaussées et des bureaux sur les niveaux supérieurs, allant de 1 à 5 niveaux au-dessus du socle.
Ville : Montpellier 34
Maître d'ouvrage : Hinovatis et Lazard Group
Maître d'oeuvre : TAA Montpellier | Cheffe de projet Associée : Aurélie Guinel | Cheffe de projet adjointe : Chloé Meau | Conductrice de travaux : Eglantine Bui
Surface : 26 925 m²
Budget : 40 M€
Dates : Lauréat du concours : Fin 2020 | Début de chantier : Avril 2024 | Date de livraison estimée : 2026
Certification environnementale : Certification BREEAM Good (plots de bureaux)
Prix : Lauréat du prix « Activités économiques » Labels de l’Immobilier Midi Libre 2024
Perspectives du concours : L'Atelier des Chimères / Tailora
Photographe : Drone-OPS
Présentation détaillée : Fiche projet complète

















