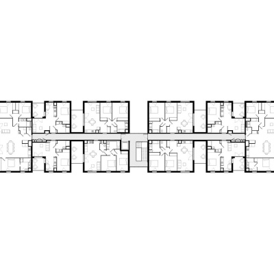
Programme : 34 logements collectifs
Ville : Toulouse 31
Maître d'ouvrage : Saint-Agne Immobilier
Maître d'oeuvre : TAA Toulouse | Chef de projet Associé : Nicolas Wojcik | Cheffe de projet adjointe : Delphine Chauviere
Surface : 1 992 m² de surface de plancher | 1 852 m² de surface habitable
Budget : 2.7 M€
Date : 2024
Certification environnementale : NF Habitat
Photographe : Prise de vue by Philippe Rol
Présentation détaillée : Fiche projet complète










