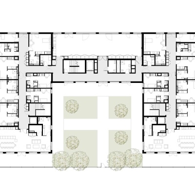
Programme : Construction de 3 maisons partagées accueillant des personnes cérébrolésées et leurs accompagnants
Ville : Pibrac 31
Maître d'ouvrage : Garonne Développement
Maître d'oeuvre : TAA Toulouse | Chef de projet associé : Nicolas Wojcik | Conducteur de travaux : Léonard Tiné
Surface : 1998 m²
Budget : 3.99 M€
Date de livraison estimée : Milieu 2024
Perspective : L'Atelier des Chimères










